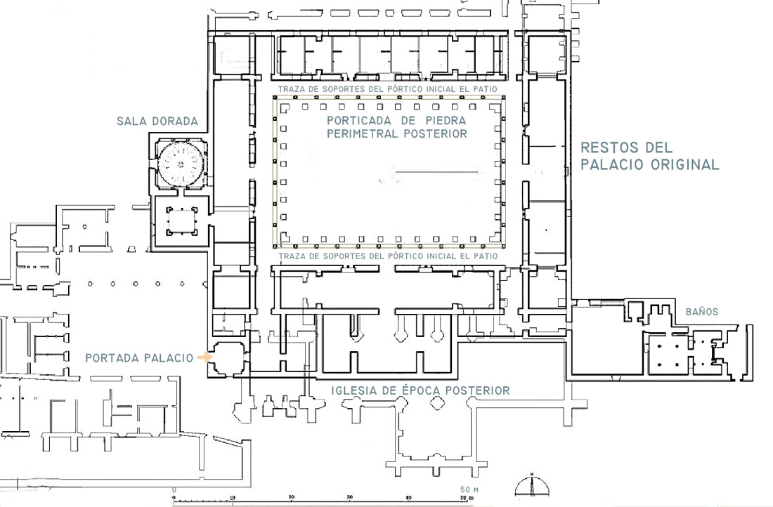
Monasterio de Santa María la Real de Tordesillas. Localización Claustro de El Vergel y leyenda. Planimetría de Antonio Almagro.
Nueva entrega del arquitecto y paisajista vallisoletano sobre jardines singulares, que en esta ocasión sirve de continuación a una entrada anterior, Jardines en los palacios de Pedro I / Una forma de viajar, aportando imágenes y croquis inéditos.
Por JOSÉ CARLOS SANZ BELLOSO
[© Todas las fotografías, croquis, esquemas y dibujos pertenecen a José Carlos Sanz Belloso, autor de este artículo]
Para continuar con los jardines de D. Pedro I de Castilla y su filiación con los coetáneos de Sevilla, Granada y Astudillo en Palencia, retomamos la planta de A. Almagro, realizada para la Escuela de Estudios Árabes en 2002.
Se seguirá un discurso con especial desarrollo fotográfico y gráfico, más atractivo y sugerente.
Antes de entrar en el Claustro de El Vergel en el Monasterio Real de las Claras de Tordesillas nos detendremos en la portada, muy parecida a la del otro palacio real en Astudillo, y ligadas ambas al periodo en el que Doña María de Padilla era considera como señora y dueña, como en la actualidad para ambas comunidades de religiosas. Gran dama fundadora de centros religiosos que siguen manteniendo su uso desde su origen auspiciado por ella, casi continuo, y en ambos casos sobre restos de estancias palatinas del Justiciero, o el vengativo, según se dice.
Portada Palacio Tordesillas. / Astudillo. Portada palacio de Pedro I y María de Padilla
Entremos en el zaguán del palacio-monasterio de Tordesillas, denominado Patio Árabe, para transportarnos sin solución de continuidad a la Edad Media.

La perturbación es similar, como similar la escala, formas y la decoración de sus arcos a las que despierta el Patio de las Damas, ya reseñado en la primera entrega. No meras coincidencias.
Zaguán, Patio Árabe. Tordesillas. / Detalle del patio de las Damas. Reales Alcázares de Sevilla.
Antes de ingresar en el Claustro pasaremos por la Sala Dorada, sin duda una posible qubba asociada al jardín original. Espacios de los cuentos de las Mil y una noches, de secretos e intrigas, en la corte de la corona de Pedro, siempre en peligro. El rey se refugia y reconforta en lugares de estética y materialización islámica, como en Sevilla, siendo este el arte más desarrollado en el momento y con las más altas cotas de belleza y amabilidad, aún no superadas.
Arte excelso y magnífico, con materiales sencillos manejados con sublime sensibilidad y pericia. El amigo de Don Pedro I, Yusuf I en Granada estaría construyendo salas análogas; curiosamente ambos vistiendo a la forma “mora”, muy cómoda por cierto según los que la han probado.
Sala Dorada, rincón. Tordesillas. / Sala Dorada, cúpula. Tordesillas.
Son más las correspondencias no solo estilísticas sino de alarifes y maestros yeseros en talleres itinerantes, comunes y seguramente los mismos.
Detalle portada Monasterio de Las Claras de Tordesillas. / Detalle del patio del Yeso. Reales Alcázares de Sevilla.
Entremos ya en el claustro de piedra que se levanta sobre el precedente “más blando” jardín no islámico, sino cristiano, realizado por un rey cristiano, bajo esta fe, y con unos cánones compositivos afines a una cultura compleja en asociación con los sistemas decorativos islámicos en la Península, pero más en el sentido profundo de identificación con el mundo natural vegetal. Culturas cristiana, hebrea y musulmana coexistentes muchas centurias.

Realizada una medición aproximada comprobamos que la planta rectangular actual se aproxima a la de la Proporción Áurea. La proporción del Patio de los Leones en la Alhambra es de 13×19 según el estudioso especialista Basilio Pavón Maldonado.
El llamado Patio del Yeso de los Reales alcázares sevillanos es un modelo de jardín rectangular con alberca de intimísima escala y delicadeza y alto refinamiento introspectivo. En la siguiente imagen se recrea uno similar.

Analizando el Claustro actual de sólida fábrica de piedra caliza elaboramos una aproximación a sus medidas y dimensiones; luego a sus proporciones, aproximándose mucho a la Proporción Áurea. Este es un sistema modular que consigue rectángulos especialmente gratos y bien proporcionados para el hombre a lo largo de la Historia.



Estudiando las proporciones con la planimetría que identifica los restos de la porticada del jardín original, con más anchura y longitud, en un jardín algo mayor, según estudios de A. Almagro, tendríamos que no se ajusta a la proporción de 19×33 m ni a la Áurea, obligándonos a buscar otros modelos y otras métricas.
Nos preguntamos en cuánto coincidiría este vergel rectangular original con los de los periodos almohades de la Casa de Contratación en Sevilla y el Patio de las Damas de los Alcázares sevillanos.



La idea que subyace es la de un jardín de crucero con una semblanza posiblemente similar a la del croquis que hemos elaborado. Quizá lo más complicado, casi imposible sea transmitir las gradaciones de los espacios de sombra, las modificaciones de estas, a lo largo del día y con variaciones de humedad y temperatura. Inefables paletas casi invisibles de grises, azulados, dorados y verdosos oliva. A veces destellos de rojos, alberos, granates y naranjas intensos, en los frutos del granado. A veces negros índigos profundos virando al negro ultramar, en lo profundo de las estancias más ocultas. Los lugares de “tu recreo”, del amor, los sueños, los susurros, los rumores, también los del agua, la intriga y la sangre.

Para terminar en esta visita gráfica comparativa incluimos datos del Monasterio de las Claras de Astudillo (Palencia). Una fotografía aérea ayuda a diferenciar los cuerpos edificados, claustros y huertas, estas de origen medieval del s. XIV, encerradas en una cerca. Un interesante museo con visita guiada por Sor María Avelina, permite el acceso a lo que ella denomina el jardín mudéjar, de recreación o inspiración medieval. Restos de conducciones indican instalaciones de baños, termales o de saneamiento, muy curiosas. Los claustros de clausura están cerrados a los curiosos. Los restos del palacio son escasos, siendo su portada el más significativo.


Son pocos los restos del palacio de Doña María de Molina, con algún elemento que lleva su nombre, y escudos y emblemas de su casa en policromías interiores.
Claustro lateral Monasterio de Astudillo. / Claustro central. Monasterio de Astudillo.

Por esta lucerna de los llamados Baños Árabes del Real Monasterio de Santa María de Tordesillas, en realidad Baños Cristianos, de época de Don Alfonso XI, y de su querida Leonor de Guzmán, se filtró una luz similar a la que disfrutaron su hijo Don Pedro y su no menos querida María de Padilla, y ahora a nosotros, en otros cuentos de las Mil y una noches.
En árabe:


Hay una pregunta recurrente que incide en la verosimilitud de la recreación gráfica de jardines tan antiguos. La calidad y delicadeza de sus jardineros no debería ser menor que la de alarifes, geómetras, maestros caleros, yesistas, estucadores, esgrafiadores, pintores, decoradores… Trabajar con plantas no es fácil si se sabe de agronomía, agricultura, botánica, suelos, hidráulica, riegos, poda, injertos, aclimatación de plantas, tratamientos de enfermedades (fitosanitarios), clima, orientación-soleamiento… Es sin duda otra forma de dibujar o pintar, para componer escenas plásticas vegetales, con técnicas semejantes a las de la policromía, la pintura u otras, si no más complejas, pues se trabaja con seres vivos.
Siempre se ha hablado de jardines mudéjares, si bien nuevas hipótesis, barajadas por Enrique Nuere y otros especialistas de la carpintería de lo blanco, es decir de alfarjes y artesonados medievales, de filiación tradicional morisca, plantea dudas y se están entreviendo adscritos a tradición europea, con influencias normandas, y con desarrollo por artistas y artesanos cristianos, y quizá mozárabes.
Hemos visto que construir un jardín como los descritos es una tarea mucho más difícil de lo que a primera vista parece. En realidad son muy sofisticados y técnicamente con harta enjundia.
Por inferencia, viendo un fragmento de yeso policromado del intradós de un arco, que comunica la sala sur de El Vergel, hoy conocida como Coro Largo, con la inmediata, hoy nave de la iglesia, podemos imaginar unos jardines igual de bien pensados, trazados y plantados, con gradaciones y juegos cromáticos de difíciles matices, además de fragancias inusuales y a veces comestibles en algunas de sus partes como raíces, tallos, cortezas, hojas, flores, polen y frutos.
© Todas las fotografías, croquis, esquemas y dibujos pertenecen a José Carlos Sanz Belloso, autor de este artículo.
Los planos de plantas y planimetrías que se han tomado como referencia son de A. Almagro.
Los documentos referenciados y accesibles en Internet, de carácter científico e histórico, que abordan en profundidad los aspectos antes esbozados constituyen un auténtico viaje a nuestro pasado y a estos ejemplos de “tiempo detenido” aún vivo:
|

Precioso. Es un trabajo francamente bueno.
Me gustaMe gusta